Liste des logements
T4 / Résidence Le Colombier
Billom
82 m²
195 000 €
rue du Colombier 63160 Billom
SUD-OUEST
195 000 €
rue du Colombier 63160 Billom
SUD-OUEST
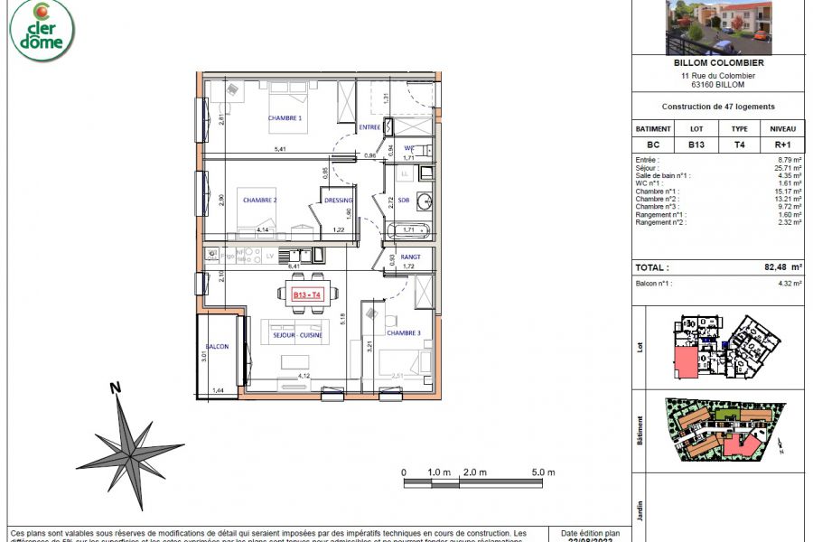
Appartement situé au 1er étage de 82,48m², balcon 4,32m².
Pièce de vie de 26m². 3 grandes chambres de 15m², 13m² et 10m².
Détails du programme
Un emplacement de choix au coeur de Billom dans un écrin de verdure.
Petite copropriété de 18 appartements, du T2 au T4.
Votre futur logement est situé dans un environnement résidentiel et tranquille, rue du Colombier, à deux pas du centre ville.
Tous les appartements disposent d'un jardin, d'un balcon ou d'une terrasse, ainsi que d'un parking privatif.
04 73 41 34 00







