Liste des logements
T2 / Résidence Le Colombier
Billom
49 m²
125 000 €
rue du Colombier 63160 Billom
EST
125 000 €
rue du Colombier 63160 Billom
EST
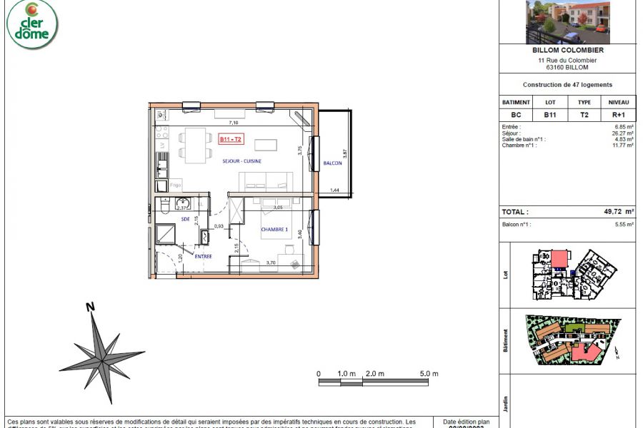
Appartement de 49,72m², avec un balcon de 5,55m², situé au 1er étage.
Pièce de vie de 26m².
Détails du programme
Un emplacement de choix au coeur de Billom dans un écrin de verdure.
Petite copropriété de 18 appartements, du T2 au T4.
Votre futur logement est situé dans un environnement résidentiel et tranquille, rue du Colombier, à deux pas du centre ville.
Tous les appartements disposent d'un jardin, d'un balcon ou d'une terrasse, ainsi que d'un parking privatif.
04 73 41 34 00







