Liste des logements
T3 / Résidence Le Colombier
Billom
65 m²
175 000 €
rue du Colombier 63160 Billom
175 000 €
rue du Colombier 63160 Billom
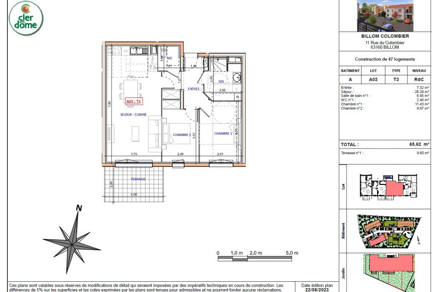
Appartement situé en Rez-de-chaussée de 65,62m²
Pièce de vie de 28,29m² donnant sur un jardin de 117,90 m² et terrasse
Détails du programme
Un emplacement de choix au coeur de Billom dans un écrin de verdure.
Petite copropriété de 18 appartements, du T2 au T4.
Votre futur logement est situé dans un environnement résidentiel et tranquille, rue du Colombier, à deux pas du centre ville.
Tous les appartements disposent d'un jardin, d'un balcon ou d'une terrasse, ainsi que d'un parking privatif.
04 73 41 34 00







