Liste des logements
T4 / Résidence Le Colombier
Billom
85 m²
208 000 €
rue du Colombier 63160 Billom
208 000 €
rue du Colombier 63160 Billom
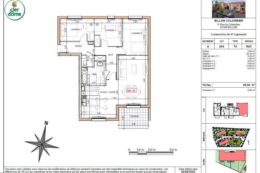
Appartement situé en Rez-de-chaussée de 85,60m²
Pièce de vie de 34,16m² donnant sur un jardin de 89,70 m² et terrasse
Détails du programme
Un emplacement de choix au coeur de Billom dans un écrin de verdure.
Petite copropriété de 18 appartements, du T2 au T4.
Votre futur logement est situé dans un environnement résidentiel et tranquille, rue du Colombier, à deux pas du centre ville.
Tous les appartements disposent d'un jardin, d'un balcon ou d'une terrasse, ainsi que d'un parking privatif.
04 73 41 34 00







