Liste des logements
T2 / Résidence Le Colombier
Billom
51 m²
131 000 €
rue du Colombier 63160 Billom
131 000 €
rue du Colombier 63160 Billom
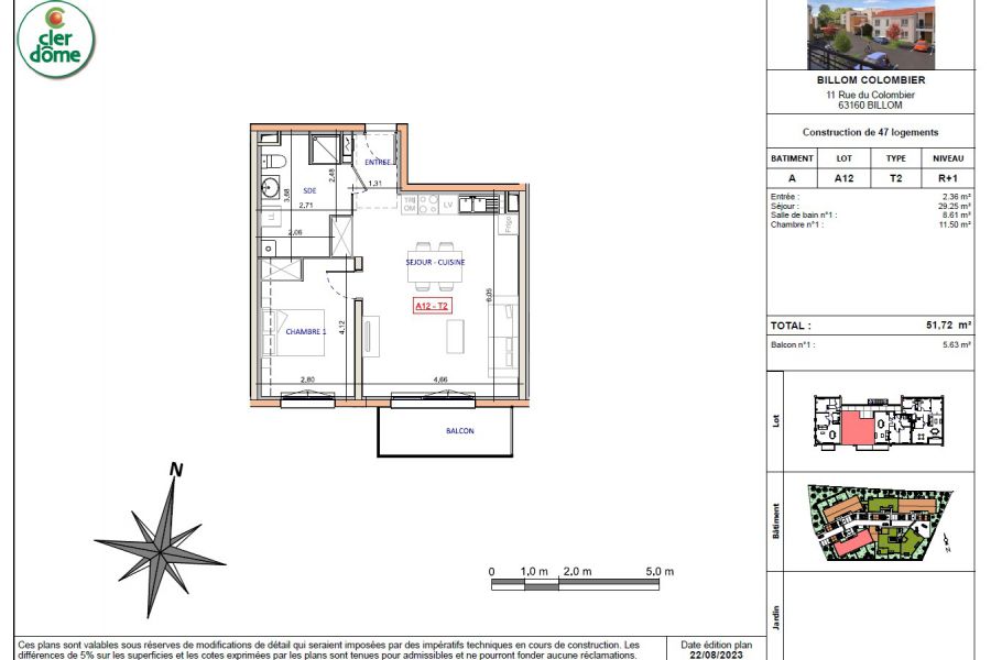
Appartement situé au 1er Etage de 51,72 m²
Pièce de vie de 29,25 m² donnant sur un balcon
Détails du programme
Un emplacement de choix au coeur de Billom dans un écrin de verdure.
Petite copropriété de 18 appartements, du T2 au T4.
Votre futur logement est situé dans un environnement résidentiel et tranquille, rue du Colombier, à deux pas du centre ville.
Tous les appartements disposent d'un jardin, d'un balcon ou d'une terrasse, ainsi que d'un parking privatif.
04 73 41 34 00







