Liste des logements
	
	
		
	
		
	
	
	
	
		
			 
				 
				 
					 
													
					
					 
						
					 
					
					
				 
			
		
		
	
T4 / Résidence Le Colombier
Billom
		
			85 m²
199 000 €
rue du Colombier 63160 Billom
		
		
		
		
		
		
		
 			
			
				
		
		
		
		
		
		
	199 000 €
rue du Colombier 63160 Billom
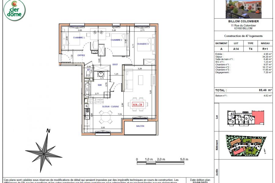
Appartement situé au 1er Etage de 85,46 m²
Pièce de vie de 35,20 m² donnant sur un balcon
Détails du programme
Un emplacement de choix au coeur de Billom dans un écrin de verdure.
Petite copropriété de 18 appartements, du T2 au T4.
Votre futur logement est situé dans un environnement résidentiel et tranquille, rue du Colombier, à deux pas du centre ville.
Tous les appartements disposent d'un jardin, d'un balcon ou d'une terrasse, ainsi que d'un parking privatif.
04 73 41 34 00
		
	 
					




 
 


