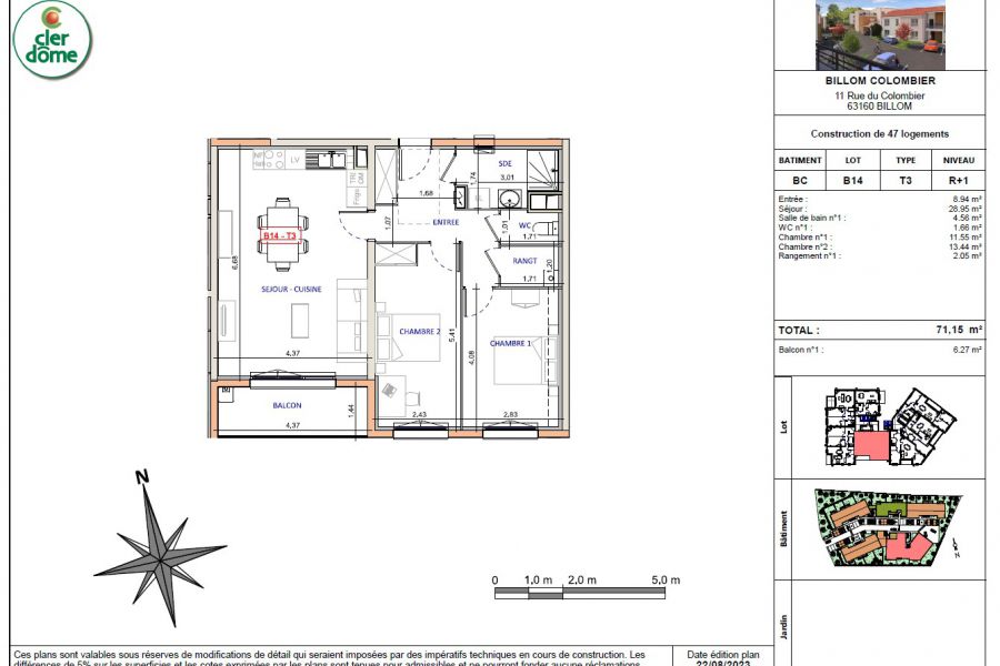
Liste des logements
T3 / Résidence Le Colombier
Billom
71 m²
170 000 €
rue du Colombier 63160 Billom
170 000 €
rue du Colombier 63160 Billom
Appartement situé au 1er Etage de 71,15 m²
Pièce de vie de 28,95 m² donnant sur balcon
Détails du programme
Un emplacement de choix au coeur de Billom dans un écrin de verdure.
Petite copropriété de 18 appartements, du T2 au T4.
Votre futur logement est situé dans un environnement résidentiel et tranquille, rue du Colombier, à deux pas du centre ville.
Tous les appartements disposent d'un jardin, d'un balcon ou d'une terrasse, ainsi que d'un parking privatif.
04 73 41 34 00







