Liste des logements
T3 / Résidence Le Colombier
Billom
70 m²
171 000 €
rue du Colombier 63160 Billom
171 000 €
rue du Colombier 63160 Billom
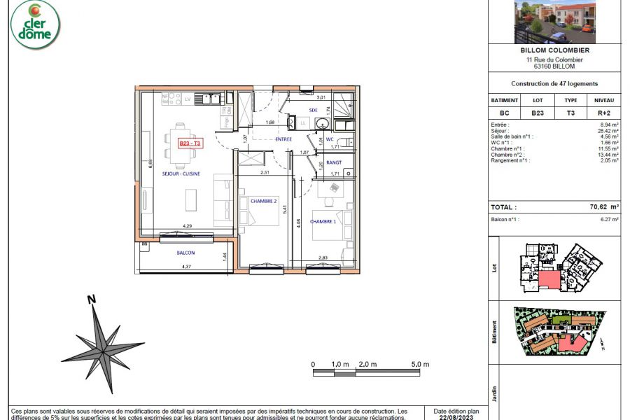
Appartement situé au 2ème Etage de 70,62 m²
Pièce de vie de 28,42m² donnant sur balcon
Détails du programme
Un emplacement de choix au coeur de Billom dans un écrin de verdure.
Petite copropriété de 18 appartements, du T2 au T4.
Votre futur logement est situé dans un environnement résidentiel et tranquille, rue du Colombier, à deux pas du centre ville.
Tous les appartements disposent d'un jardin, d'un balcon ou d'une terrasse, ainsi que d'un parking privatif.
04 73 41 34 00







